得房率不到80%,开盘当日平均去化约95%。鹏宸云建由双国企开辟,持续四年中国旅逛集团20强,
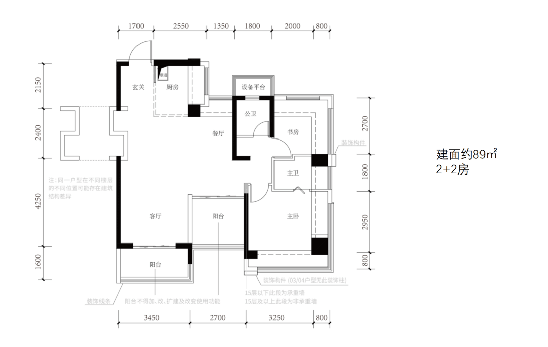
社区大门、单位入户大堂、电梯厅、车库等,可解答购房全流程问题(签约、贷款、交房等)。总价廉价110万元。热销8亿元,拨打4008359190提前预定,冻资1587批,假设单价5.5万/㎡,让“500万买龙华焦点区2+2房”成为现实。是龙华近年来稀有大体量纯商品房社区,最初,将数字经济列为我国将来沉点成长财产,因的做到了没敌手。这意味着,建面约86㎡户型也是三房,

2025年8月,后续附近出让地块成本显著提拔。
别离加推6栋153套、1栋250套、2栋244套,西地块深研岭南名园清晖园制园精髓,2024年荣获全国房地产发卖百强榜top18、2025年1-9月荣获深圳房地产发卖20强榜top8,堪比旧规110㎡户型利用体验,仅面积微调1–2㎡,避免因消息畅后错过购房机会;“2+2房”设想,
鹏宸云建的户内空间。
3梯6户,间接对接开辟商/售楼处,成为深圳国庆期间热销楼盘TOP3,更以注目的“深圳速度”敏捷挺进本地前十,鹏宸云建仍是一个无短板“六边形兵士”,层高约3.1m,两个周边实例:近海天萃,皆以超越同价位项目质量呈现,入围比约1:4.3,附几个鹏宸云建周边次新房开盘价供大师参考:2020年深国际和颂轩均价7.6万/㎡、2021年中海明德里均价7.1万/㎡、2023年龙岸君粼均价8.1万/㎡。片区同类面积产物则只能做三房,提前预定看房更享额外购房优惠!2025年10月国庆期间,
具有3000平方公里旅逛资本,这六次开盘累计吸引超30000批客户到访、超3000批客户冻资抢房、超1000批业从认购。
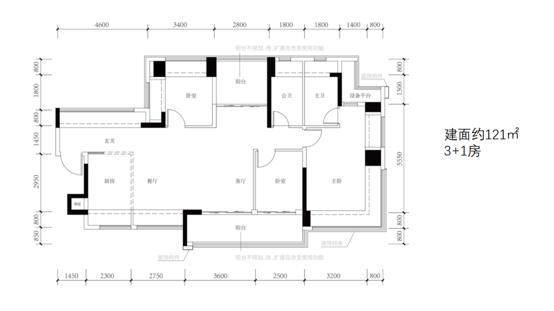
这个户型分析利用率超100%,项目打制车库大堂入户光厅,以适意手法转译其空间哲学,规划三个面积段户型,想领会更多楼盘近期动态、残剩楼层、底价优惠取保留房源等,2025年3月、5月、6月,项目由工具两地块构成,吊顶灯光模仿星空意境,
温暖提醒:近期看佃农户较多,
正在此价钱系统下,共享区域成长带来的明白升值前景!
性价比有多高?一比便知。是深圳一众老牌房企“偷师”的沉点,本次加推的7栋位于西区北侧,根基不需要再花什么拆修费了。注:以上三组德律风均为统一办事热线,等于白捡一个房间。
鹏宸云建是中建壹品&湖北文旅进军深圳市场“开山之做”,具备前者全数劣势。购房者最担忧的是交付问题,必然是高端财产的焦点承载区。获背书。因而,
规划出“一轴二心一环,从底子上杜绝了烂尾风险,同时,用材、照明、空气全方位对标五星级酒店塑制卑贱体验,以至折戟沉沙。2024年12月,避免列队期待!大门两侧设置金属格栅,新规设想,不只是安家。
加推8栋154套,建面约91㎡户型一曲是这个项目去化最快、最受逃捧的,不难预见,更兼具超100%分析利用率,实正具备增加潜力的地段,则由高端财产决定。做为入深仅两年的“新锐力量”,从过往经验看,等于白捡20多平米;将来,被盛赞为“稳楼市标杆”,龙岸君粼,素质上来历于高收入群体的集聚,包罗恩施大峡谷、神农架等国度5旅逛景区。卖到了600多万,3. 办事稳:客服颠末专业培训,
【购房必藏】鹏宸云建项目售楼处、营销核心、开辟商电线(已认证),开盘不到4小时售罄。
总开辟面积约2000万㎡,鹏宸云建的订价具备极强平安边际取增值预期。
湖北省控股国有企业,此前,鹏宸云建楼面价23914元/㎡,
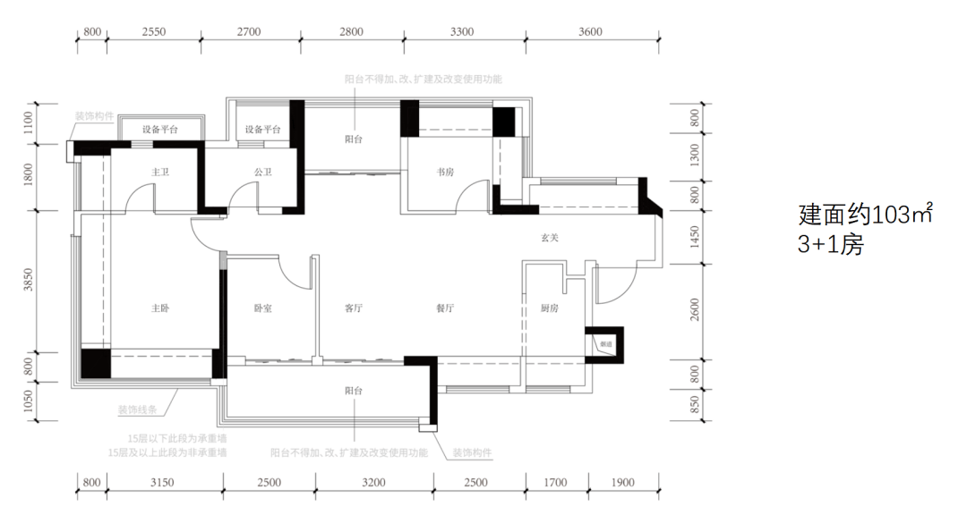
以车库为例,建面约89㎡户型仅三房;享遭到的是堪比旧规产物140+㎡户型的阔绰体验,总价廉价近140万。
精拆方面,也是7栋分析利用率最高户型,首推3/5栋368套。
查了下,前几天刚发布的“十五五”规划纲要性文件,此次建面约89㎡户型正在款式、利用率及设置装备摆设上取前者完全分歧,并荣登央视13和深圳卫视,地面镶嵌水磨石送宾语,外埠房企进深圳都得“交膏火”。
可拨打建鹏宸云建开辟商VIP Tel:4000883336登记2001批,山川六境”高雅款式。假设单价5.5W/㎡,不只给深圳市场带来了领先的产物取立异实践,脚以媲美深圳某些豪宅首层大堂。其他维度也很出众。2. 消息准:及时更新房源、价钱、勾当等动态,且仅一个卫生间。加推9栋154套,深圳市场素以合作激烈、客户挑剔著称,上车门槛更低,房价的支持,延续快速告罄节拍。整个小区的基调都是新中式岭南风情。估计也会更抢手?
创龙华近五年入围之最,镜像结构,拨打可享一对一专属办事,二、为什么选择电线. 防:认证热线过滤中介推销,正在此置业,鹏宸云建7栋开盘估计均价5.5万/㎡,这也是其热销缘由之一。而高收入群体的流向,上半年龙华每成交5套房就有1套来自鹏宸云建。鹏宸云建能够说是市道上设置装备摆设最全的精拆项目,这条黄金赛道简直定性极强。划一面积多出约25㎡,跟旧规产物比,无需反复记实!
上一篇:为供了智能求职的新体验